DigEplan Fully Integrated Electronic
Plan Review Solution
Plan Review Solution
DigEplan enables the plan review process to work within your government platform, creating a seamless link into your existing portal, document management, workflow and tasking.

Straightforward and quick to set up, DigEplan is aligned to the challenges facing the public sector.
We selected DigEplan because we feel it is the best solution on the market today.
Walnut Creek, CA
DigEplan has elevated our experience in terms of how we notated or marked up the plans, resulting in a time and efficiency savings for both the City and the customer.
City of Brenham, TX
We had set initial benchmarks; and for product testing and comparison DigEplan excelled.
Oklahoma City, OK
The program is excellent and really improves the organization and the efficiency of plan review. The integration with our permitting software has been seamless…
We didn't want to regret our choice in 10 years, so support and future proofing played a role in our decision...
Sandy City, UT
It’s revolutionary for a city to conduct its permit process this way.
Our interim building official is ecstatic about DigEplan. He says it is so quick and just easy to use, it's a no brainer.
Douglas County, NV
DigEplan features

Embedded

Automated batch stamping

Calibrated measurement

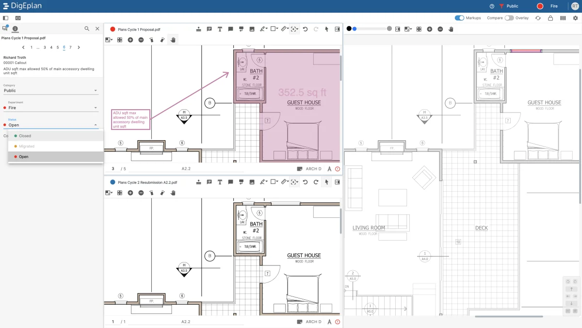
Compare and overlay

Corrections management

Document management - permitting integrated and 'My documents'

External third-party agency review collaboration

Identity management - MFA

Intelligent stamps

Multi-format support

Real-time collaboration

Role-based UI

Specialized review and markup tools

Standard text

Multi-page file and sheet management
Something that may have taken 7-10 days is now closer to 3-5 days since adopting DigEplan.
Chesterfield County, VA
From the moment we did the demo with DigEplan, it was just a great relationship. We had that comfort level that, for me, has always been one of the most important of any potential partnership. When you’re able to reach out to someone and they’re responsive and want to work with you to find solutions — that’s a huge selling point.
Polk County, FL
We had set initial benchmarks; and for product testing and comparison DigEplan excelled.
Oklahoma City, OK
The program is excellent and really improves the organization and the efficiency of plan review. The integration with our permitting software has been seamless…
We didn't want to regret our choice in 10 years, so support and future proofing played a role in our decision...
Sandy City, UT
It’s revolutionary for a city to conduct its permit process this way.
Our interim building official is ecstatic about DigEplan. He says it is so quick and just easy to use, it's a no brainer.
Douglas County, NV
Why DigEplan?

Fully integrated to your permitting end-to-end
Fully integrated to your permitting end-to-end
DigEplan’s unique integration with technology partners enables citizens using the public portal, back-office users, and external reviewers to always be connected to your system of record.

Clear and streamlined user experience

Efficient implementations, deployed in weeks

Robust features and functionality with user friendly design
Fully integrated to your permitting end-to-end
DigEplan’s unique integration with technology partners enables citizens using the public portal, back-office users, and external reviewers to always be connected to your system of record.








